想了解設備資料?報價?售後?請留言,速回電
廠家直銷,留言立享本月優惠價免費提供環保政策、辦廠手續、投資預算等資料
irtnzbgvqs
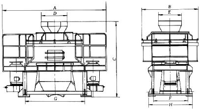
沖擊式破碎機是紅星機器的明星産品,深受客戶歡迎,紅星為破碎機的安裝、調試提供全方位的服務。沖擊式破碎機既可以在室内工作,也能适應室外的環境,如果安裝在室内,需要注意沖擊式破碎機的安裝尺寸。
.jpg)
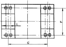
沖擊式破碎機安裝尺寸見圖 1-8 和1-9 。

圖 1-8 沖擊式破碎安裝尺寸圖

圖 1-9 沖擊式破碎機地基尺寸
沖擊式破碎機價格詳細垂詢:+852-16710559
沖擊式破碎機廠家地址:鄭州-國家高新技術産業開發區檀香路8号
上一篇:錘式破碎機生産能力計算公式
下一篇:沖擊式破碎機的工作原理及性能
想了解設備資料?報價?售後?請留言,速回電
廠家直銷,留言立享本月優惠價免費提供環保政策、辦廠手續、投資預算等資料
3分鐘前 高先生:時産200噸制砂機報個價,處理鵝卵石
8分鐘前 李先生:移動式破碎機怎麼解決粉塵問題?
13分鐘前 徐女士:需要制砂機,南甯能看制砂現場嗎?
16分鐘前 程先生:破碎生産線出個方案及報價,有什麼售後服務?
22分鐘前 鄭女士:想了解時産500噸錘破,加工石灰石
31分鐘前 吳先生:成套石頭破碎設備有嗎?給個詳細産品資料
36分鐘前 羅先生:每小時100噸左右的鄂破和反擊破,推薦下型号
42分鐘前 梁先生:膨潤土磨到200目,用什麼磨粉設備?
提交留言我們會第一時間回複您!
鵝卵石是一種常見的自然形成的天然礦石,經常出現在河床邊緣,經過河水不斷的沖洗和摩擦而形成的,因為外形酷似鵝卵,所以,世人稱之為鵝卵石。鵝卵石常常被用于建築領域的裝飾和美化的作用。
2017-07-08河南是我國沖擊式破碎機的重要生産基地,這裡的沖擊破碎機廠家琳琅滿目,廠家之間的競争力較大,每個廠家報價也不同,為了幫助用戶以低的價格選購到、優質的沖擊式破碎機設備,下面就為大家簡要介紹一下河南沖擊式破碎機報價方面的相關信息。
2017-03-09新型螺旋洗砂機作為洗砂機類型的一種,是在普通洗砂機的基礎上進行技術上的創新和結構上的改造,使其性能更加完善,生産效率得以提升!
2015-01-19斷帶故障是帶式輸送機工作過程中常見的一種故障,危害特别大,如造成設備損壞,甚至出現安全事故。這類事故恢複生産時間較長,如何将斷帶抓住,防止事故是各礦急需解決的問題。斷帶保護裝置是一種可實現斷帶保護功能的裝置,其設計合理、結構簡單、動作可靠。
2013-12-11離心沖擊式破碎機是河南紅星機械近期新推出的破碎産品之一,該設備是經過紅星破碎設備專家經過對沖擊式破碎機的作用大量實驗及研究而重新設計的新型沖擊式破碎機。該設備的主軸安裝過程如下。
2012-06-07進料端襯闆和出料端襯闆是安裝橡膠襯闆的重要,今天我們就了解一下橡膠襯闆進料端和出料端的安裝方法。進料端和出料端橡膠襯闆都是用橡膠壓條固定。
2011-12-21