想了解設備資料?報價?售後?請留言,速回電
廠家直銷,留言立享本月優惠價免費提供環保政策、辦廠手續、投資預算等資料
vvvavshwae
反擊式破碎機也叫反擊式碎石機、反擊式粉碎機,是一種高新型的破碎設備,該設備利用其反擊能量能夠使物料破碎,并且該設備結構設計簡單,工作可靠,運行效率超高,物料被加工以後粒度均勻,可随意調節力度大小。

反擊式破碎機(大型)

反擊式破碎機實拍圖(小型)
本系列産品能處理≤300-700毫米以下物料,具抗壓強高可達350兆帕,如青石、石灰石、煤矸石、河卵石、花崗岩、鐵礦石等等,特别是用于高速公路、鐵路、水電工程等流動性石料的作業,可根據加工原料的種類,規模和成品物料要求的不同采用多種配置形式。

反擊式破碎機适用于鵝卵石、玄武岩等多種物料
反擊式破碎機主要由轉子、反擊架、機架、棘輪翻蓋裝置和轉動部分等零部件組成。

雙轉子反擊式破碎機結構圖
石料由機器上部直接落入高速旋轉的轉盤,在高速離心力的作用下,與另一部分以傘型方式分流在轉盤四周的飛石産生高速碰撞與高密度的粉碎,石料在互相打擊後,又會在轉盤和機殼之間形成渦流運動而造成多次的互相打擊、摩擦、粉碎,從下部直通排出,形成閉路多次循環,由篩分設備控制達到所要求的粒度。

工作原理
1、進料口大、破碎腔高、适應物料硬度高,處理物料含水量過大時,進料溜槽和反擊闆可配備加熱裝置,防止物料的粘結;
2、反擊闆與闆錘間隙能方便調節,有效控制出料粒度,顆粒形狀好、石粉少;
3、采用新的制造技術,結構設計,全新重型化轉子結構和有限元分析技術、三腔破碎,可容納量增多,運行中效率更高。
4、結合新概念設計,融入自動控制編程器系統,操作、運行更靈活,節省時間、人力,且核心零部件磨耗小、壽命長,綜合效益高;
5、設計中在進料口安裝了防塵裝置,加上渦流腔内部有空氣自循環系統,加上特殊電機,減小了震動,又消除了噪音,實現綠色環保生産。
老撾客戶生産現場視頻
反擊式破碎機是一款價格實惠的破石設備,通常幾萬到十多萬就可以選購一台,因為選擇的型号不同價格會稍有差異,可以随時點擊在線咨詢,免費獲取優惠報價單,有負責設備的經理詳細提供,以及其他詳情資訊,一一為您解答,而且紅星廠家在摸爬滾打中積累了不少經驗,設備從設計到售後服務等都獨立完成,設備質量更放心、售後更貼心。

客戶來廠參觀選購
| 型号 | 規格 (mm) |
進料口尺寸 (mm) |
最大進料粒度 (mm) |
處理能力 (t/h) |
電機功率 (kw) |
外形尺寸 (長×寬×高) (mm) |
| PF-1007 | Φ1000×700 | 400×730 | 300 | 30-70 | 4P 37-45 | 2330×1660×2300 |
| PF-1010 | Φ1000×1050 | 400×1080 | 350 | 50-90 | 4P 45-55 | 2370×1700×2390 |
| PF-1210 | Φ1250×1050 | 400×1080 | 350 | 70-130 | 6P 110 | 2680×2160×2800 |
| PF-1214 | Φ1250×1400 | 400×1430 | 350 | 80-180 | 6P 132 | 2650×2460×2800 |
| PF-1315 | Φ1320×1500 | 860×1520 | 500 | 100-280 | 6P 200 | 3180×2720×3120 |
| PF-1320 | Φ1300×2000 | 993×2000 | 500 | 140-380 | 6P 250 | 3220×3100×3120 |
| PF-1520 | Φ1500×2000 | 830×2040 | 700 | 200-550 | 4P 315-400 | 3959×3564×3330 |
| PF-1820 | Φ1800×2000 | 1260×2040 | 800 | 300-800 | 6P 630-710 | 4400×3866×4009 |
一、安裝
按本機适用範圍選擇安裝位置,同時保證有足夠的檢修空間;
二、調試
1、轉子在出廠前已經通過平衡處理,用戶一般不需要再作平衡試驗,在更換錘頭及轉子部件時,應作平衡配置。
2、主機安裝應調平衡,主軸水平度誤差小于1mm/m,主從動輪在同一平面内,調整皮帶松緊适度,固定電動機。
3、檢查各部件安裝位置是否移動、變形、鎖緊所有螺栓,檢查密封是否良好。
4、檢查電器箱接線及緊固情況,調整延時繼電器及過載保護器,接通電路,試驗電機轉向,選擇合适規格的保險絲。
5、檢查液壓系統動作是否可靠,有無滲漏現象。
6、清除反擊式破碎機内異物,用手搬動轉子,檢查有無磨擦、碰撞。
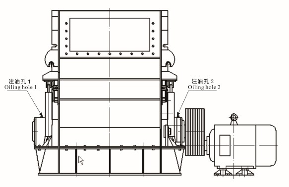
三、潤滑劑說明

反擊式破碎機潤滑劑說明
開機前,從注油孔1、2中各注入3号锂基脂黃油,以後每8個小時注入約50克。同時每次再加入少量機械油以起到散熱作用。

紅星售後服務
對于反擊式破碎機安裝、調試等,也不用擔心,紅星廠家有專業的售後團隊,保持着48小時抵達的售後态度,免費負責設備售後一系列服務,一年保質期,會定期有回訪,技術人員免費檢查保養、維修,提供原裝配件,反擊式破碎機已銷往30多個國家地區,歡迎廣大客戶來廠參觀選購。
河南鄭州反擊式破碎機價格詳細咨詢:+852-32767330。
河南鄭州反擊式破碎機廠家地址:河南鄭州高新技術産業開發區檀香路8号。
想了解設備資料?報價?售後?請留言,速回電
廠家直銷,留言立享本月優惠價免費提供環保政策、辦廠手續、投資預算等資料
3分鐘前 高先生:時産200噸制砂機報個價,處理鵝卵石
8分鐘前 李先生:移動式破碎機怎麼解決粉塵問題?
13分鐘前 徐女士:需要制砂機,南甯能看制砂現場嗎?
16分鐘前 程先生:破碎生産線出個方案及報價,有什麼售後服務?
22分鐘前 鄭女士:想了解時産500噸錘破,加工石灰石
31分鐘前 吳先生:成套石頭破碎設備有嗎?給個詳細産品資料
36分鐘前 羅先生:每小時100噸左右的鄂破和反擊破,推薦下型号
42分鐘前 梁先生:膨潤土磨到200目,用什麼磨粉設備?
提交留言我們會第一時間回複您!
在生态文明建設大環境下,綠色、低碳環保、節能是礦山機械設備行業發展的趨勢。就反擊破來說,它作為破碎流程中的主要設備投資前景又如何呢?下面我們一起來看一下。
2018-04-09HD1315反擊破石機,憑借它自身優良的性能和可靠的質量,廣受投資用戶喜愛。到底哪家生産的HD1315反擊破石機更好呢?我們給大家推薦了河南有名的礦山機器。
2018-03-01反擊破,是石料破碎生産線上的主要設備之一,被廣泛用于化工、建材、冶金、礦山、建築和公路能多個領域中。本文是對反擊破技術參數和性能詳細介紹。
2018-01-311214反擊破其規格為Φ1250×1400mm,選用較新技術,設計結構非常特别,成品粒形較好,可以破碎各種粗、中、細物料,是石料生産加工更好的選擇。
2017-11-24反擊式破碎機是一種能夠對物料進行粗、中、細碎的作業的效率高破碎設備,生産能力大,破碎比高,出料力度均勻,适用範圍廣,可對多種物料進行破碎,1214反擊破是使用度較高的型号之一,這款設備怎麼樣?好用嗎?本文對1214反擊破進行詳細介紹,方便用戶進行選購。
2017-11-08伊利石主要是由白雲母和鉀長石風化而成的,含有的雜質比較多,耐熱性能非常的好,經破碎後的伊利石應用範圍比較大,伊利石的破碎需要用到破碎機,其中伊利石反擊式破碎機是常用的伊利石破碎設備,根據調查顯示,河南鄭州是生産伊利石反擊式破碎機集中的地區,市場上大部分的伊利石反擊式破碎機都是在河南鄭州生産,而河南鄭州伊利石反擊式破碎機的價格也是很多客戶非常關心的問題,那麼究竟該設備的價格是多少呢,下面我們就來做簡要介紹。
2016-08-18